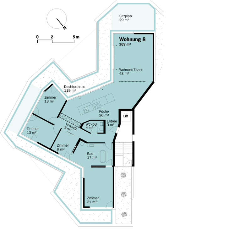
OG2
W8 ATTIKA
5½ Zimmer
Wohnungsfläche: 169 m2
Terrasse: 43 m2
Dachterrasse: 119 m2


vermietet
W8
W8_Plan

A PHP Error was encountered

Severity: Core Warning

Message: PHP Startup: Unable to load dynamic library '/opt/alt/php55/usr/lib64/php/modules/i360.so' - /opt/alt/php55/usr/lib64/php/modules/i360.so: cannot open shared object file: No such file or directory

Filename: Unknown

Line Number: 0

Backtrace: